Die älteste Apotheke Berlins, lokalisiert in der Friedrichstraße im Zentrum der Hauptstadt, wurde 1682 von Kurfürstin Dorothea in Auftrag gegeben. Symbolisiert durch einen leuchtenden Schriftzug auf zartrosa Wandfläche erhält diese nun ein neues Gewand.
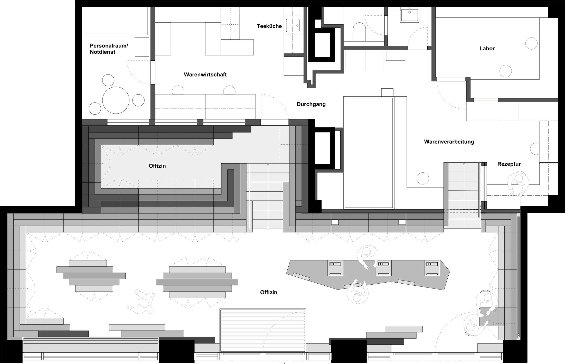
Im Kontrast zu den Pastelltönen der Boden- und Wandflächen verbindet eine schwarzweiße kubische Topographie die beiden Ebenen des Offizins der Apotheke. Das abstrakte Spiel von Stufen mit wechselnden Materialien auf den Oberflächen der Kuben lässt die Einrichtung zu einer fließenden Landschaft werden.
Die Kuben kombinieren verschiedene Materialien: graues Linoleum auf beanspruchten Oberflächen, Stufen und Podest; schwarzes MDF oder schwarzer Mineralwerkstoff als Möbelfronten. Bronzefarbene Seitenflächen verstärken den dreidimensionalen Effekt der abgetreppten Einbauten. Durch Gehrungsschnitte bleibt der Materialeinsatz präzise abstrakt. Frei im Raum stehende Verkaufsmöbel, so wie ein gefalteter Tresen fügen sich unmerklich in das Thema der Topografie ein. Die Warenpräsentation erinnert damit eher an die mondänen Bekleidungsgeschäfte der Friedrichstraße als an standardmäßige Apothekeneinrichtungen.
Im hinteren Teil der Einheit, nicht zugänglich für die Öffentlichkeit, befinden sich Warenwirtschaft, Labor und Personalraume der Apotheke. Der Boden im Offizin ist mit strapazierfähigem PVC-Gewebe belegt und erhält so eine textile Anmutung.